15+ Program Cnc Bubut
Oktober 20, 2021
15+ Program Cnc Bubut- Catatan : Main program pada mesin CNC dengan kontrol Sinumerik 802 biasanya disimpan dengan ekstensi program MPF (Main Program File), contoh : BUBUT1.MPF. ii. Sub Program berisi

Contoh Program G Code CNC Bubut Turning Poros Bertingkat Sumber : teknikmesin-indo.blogspot.com

Soal Mesin Bubut Cnc PDF Document Sumber : fdokumen.com

Cnc Programming Sumber : cncprogrammingx.blogspot.com

semoga bemanfaat Membuat program cnc bubut dari Sumber : maulananurulistiqlal.blogspot.com

Membuat Program cnc bubut bertingkat YouTube Sumber : www.youtube.com

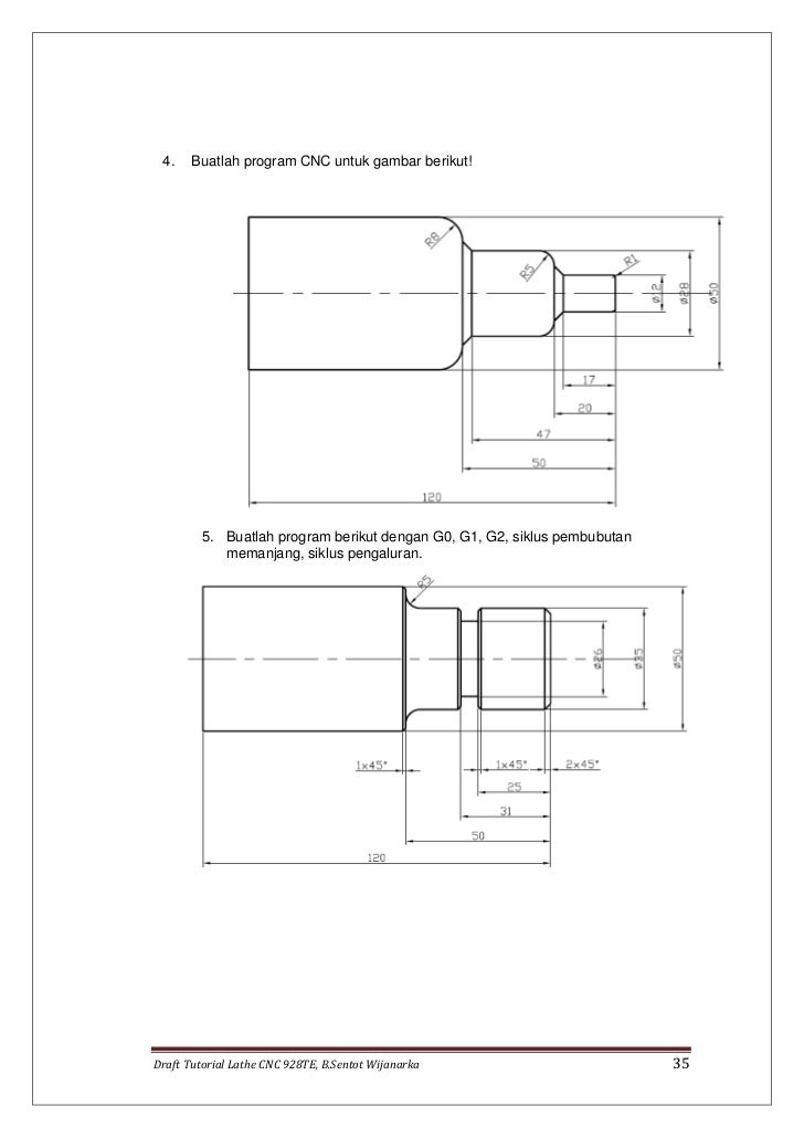
Dasar pemrograman untuk mesin bubut cnc dengan gsk 928TE Rev1 Sumber : www.slideshare.net

ARUDAM KANA TEKNIK JOB 02 CNC BUBUT Sumber : arudamkanateknik.blogspot.com

Contoh Program Cnc Bubut G71 Ahli Soal Sumber : ahlisoal.blogspot.com

Pelajaran CNC SMK Kelas XI CNC Bubut Sumber : cncsimulasi.blogspot.com

Soal Dan Jawaban Mesin Bubut Kelas Xi Belajar Soal Sumber : belajarsoaldocs.blogspot.com

Program Bubut CNC Fanuc Sumber : www.scribd.com

Contoh Soal Pemrograman Cnc Materi Siswa Sumber : materisiswadoc.blogspot.com

ARUDAM KANA TEKNIK JOB 04 CNC BUBUT Sumber : arudamkanateknik.blogspot.com

Cnc Programming Sumber : cncprogrammingx.blogspot.com

ARUDAM KANA TEKNIK JOB 03 CNC BUBUT Sumber : arudamkanateknik.blogspot.com
contoh program cnc bubut absolut, cara membaca program mesin cnc, g00 adalah perintah yang berarti, kode cnc lengkap pdf, buatlah program pembuka cnc milling kemudian jelaskan maksud dari program tersebut, mesin cnc milling, apa itu cnc,
Program Cnc Bubut

Contoh Program G Code CNC Bubut Turning Poros Bertingkat Sumber : teknikmesin-indo.blogspot.com

Soal Mesin Bubut Cnc PDF Document Sumber : fdokumen.com

Cnc Programming Sumber : cncprogrammingx.blogspot.com

semoga bemanfaat Membuat program cnc bubut dari Sumber : maulananurulistiqlal.blogspot.com

Membuat Program cnc bubut bertingkat YouTube Sumber : www.youtube.com

Dasar pemrograman untuk mesin bubut cnc dengan gsk 928TE Rev1 Sumber : www.slideshare.net

ARUDAM KANA TEKNIK JOB 02 CNC BUBUT Sumber : arudamkanateknik.blogspot.com
Contoh Program Cnc Bubut G71 Ahli Soal Sumber : ahlisoal.blogspot.com

Pelajaran CNC SMK Kelas XI CNC Bubut Sumber : cncsimulasi.blogspot.com

Soal Dan Jawaban Mesin Bubut Kelas Xi Belajar Soal Sumber : belajarsoaldocs.blogspot.com
Program Bubut CNC Fanuc Sumber : www.scribd.com

Contoh Soal Pemrograman Cnc Materi Siswa Sumber : materisiswadoc.blogspot.com

ARUDAM KANA TEKNIK JOB 04 CNC BUBUT Sumber : arudamkanateknik.blogspot.com
Cnc Programming Sumber : cncprogrammingx.blogspot.com

ARUDAM KANA TEKNIK JOB 03 CNC BUBUT Sumber : arudamkanateknik.blogspot.com